Introducing Three New Landscape Design Packages
At Epic Landscapes, we understand that every outdoor space is unique, and so are your design needs. We also know that many of you are looking for more flexibility when it comes to the landscape design process. That's why we're excited to introduce three new landscape design packages, each created to provide a tailored approach to your project, from simple garden refreshes to a complete outdoor transformation.
Whether you're starting with a blank canvas or revitalising an existing space, these packages are designed to give you peace of mind and the flexibility to choose the right level of detail and investment for your home. Backed by our team's deep expertise—with over 28 years of experience and extensive knowledge in everything from horticulture and plant selection to hardscape construction—each package guarantees exceptional results!
1. The Signature Concept Plan: Our Most Comprehensive Service
For those who want a complete, polished plan with every detail carefully considered, the Signature Concept Plan is for you. This is our most comprehensive service, a two-stage design process with full 3D visualisation that ensures a ready-to-implement design. This package is ideal for maximising the value of your property, providing you with the confidence that your outdoor space will be professionally and thoughtfully designed.
Here is a closer look at our two-stage design process:
- An on-site consultation to discuss your vision and goals.
- We'll develop a detailed design brief and proposal to capture your requirements.
Stage One: Preliminary Design & 3D Modelling
- A site measure with accurate measuring tools.
- CAD-drawn colour presentation plan illustrating all design features, material selections, levels, lawn, and garden layout
- 3D modelling to provide a realistic visual representation of the proposed design
- Comprehensive supporting documentation to clearly convey the concept and vision
- A presentation of the design to the client.
- One complimentary round of revisions to the preliminary design
Stage Two: Planting Design & Full Documentation
- Plant selection customised to suit site conditions and client preferences
- Comprehensive planting design, including a full-colour plan for easy plant identification
- Detailed planting schedule, outlining plant quantities, spacing, grades, and mature heights
- High-quality imagery of all proposed plant species
- Plant maintenance guide to support long-term care and success
- Irrigation and planting notes for effective implementation and sustainability
- Dimensioned construction plan to guide accurate installation
- Detailed construction drawings with precise measurements and specifications
- A presentation of the complete design package to the client.
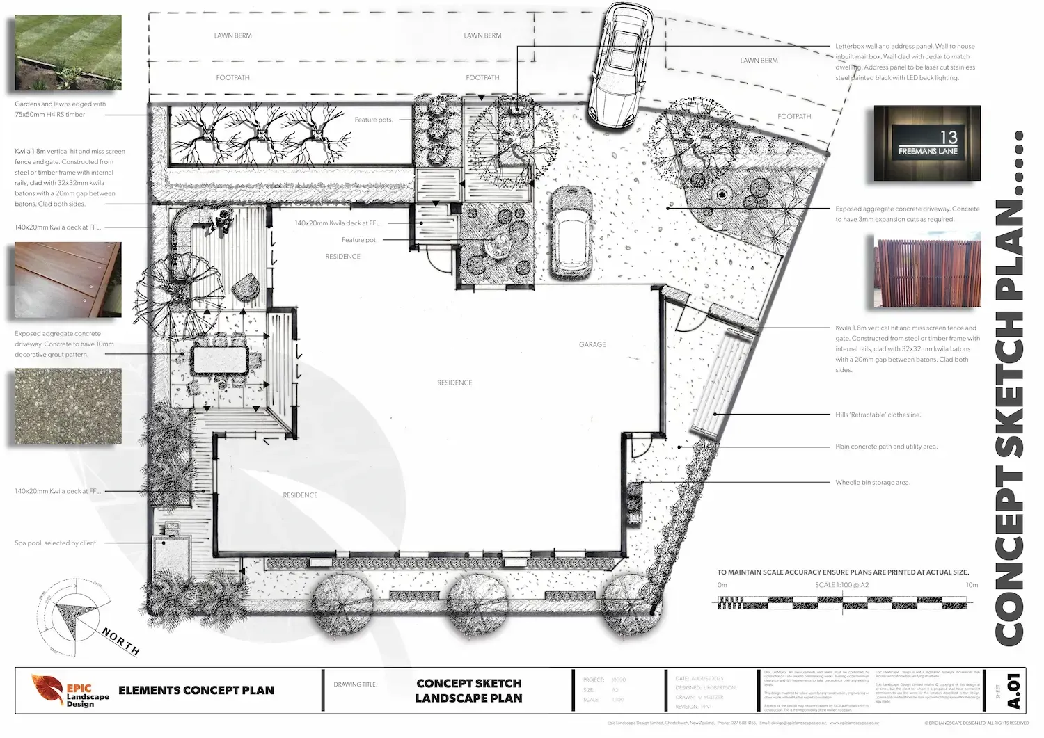
2. The Elements Concept Plan: A Clear Hand-Drawn Road Map
The Elements Concept Plan is perfect if you're looking for a clear, practical road map for your property without the extensive detail of the Signature package. This hand-drawn plan captures your full design vision, including both hardscaping and planting, while allowing for flexibility as your project progresses.

This package includes:
- An on-site consultation to discuss your vision and goals.
- We'll develop a design brief and proposal to capture your requirements.
- A site measure with accurate measuring tools if required.
- A hand-drawn design that outlines hard and soft landscape features, a planting plan and supporting imagery.
- A presentation of the design to the client.
- The option for revisions at an hourly rate, allowing you to fine-tune the design as you see fit.
3. The Essentials Concept Plan: Perfect for Developers or Basic Layouts
For a streamlined, entry-level design, our Essentials Concept Plan is an ideal choice. This hand-sketched design captures the overall layout and main garden elements, making it perfect for clients who need professional guidance on the basic layout for developer consent or simply want to get a professional start on their project without a high level of detail.
This package includes:
- A half hour phone consultation to discuss your vision and goals
- A landscape plan developed from supplied house plans
- Simple hand-sketched design that outlines hard and soft landscape features and planting recommendations
- Emailed copy of plans sent to the client
- A follow-up phone call with the client to discuss design elements and answer potential questions.

How to Choose the Right Plan for You
Choosing the right design plan is the first step toward creating your dream outdoor space. To help you find the perfect fit, consider these key questions about your project:
Is your property a large section or lifestyle block?
- If yes, the Signature Concept Plan is designed for you. This comprehensive package ensures every detail of a large, complex space is meticulously planned, providing a detailed complete vision.
Are you planning to include major hardscape features - for example, a pool, outdoor kitchen, outdoor fire or extensive retaining walls and levels?
- If yes, the Signature Concept Plan is a suitable fit. The detailed documentation and 3D modelling are crucial for these high-value additions, ensuring a seamless build process.
Do you require a full design vision without all the detail and visualisation?
- If yes, the Elements Concept Plan is the perfect solution. It provides a clear, hand-drawn road map for both hardscaping and planting, allowing for flexibility as you build.
Do you struggle to visualise a design from a 2D plan?
- If yes, the Signature Concept Plan offers immersive 3D renders that help you clearly picture your future landscape. These visuals highlight key viewpoints, making it easier to visualise the design in context—both inside and out.
Are you building within a new subdivision and require a layout plan for developers’ consent?
- If yes, the Essentials Concept Plan offers a streamlined, professional layout that gets the job done without unnecessary detail.
Do you have a small section or only need part of your property designed?
- If yes, the Essentials or Elements Concept Plan is the right choice. These options provide the appropriate level of detail and guidance for smaller areas while still maintaining strong design integrity and ensuring the space functions beautifully.
No matter which package you choose, you can be sure that your new outdoor space is designed with the same care and attention that you put into your home. It’s an investment that will set your landscape apart and ensure the result is something you can take pride in for years to come.
Ready to find the perfect landscape design service Christchurch has to offer? Get in touch with our team today to discuss your vision and see how we can bring it to life.

Epic News


















